Kawasaki G7 Wiring Diagram

Kawasaki G7 Wiring Diagram

  • Category : Wiring Diagram
  • Post Date : January 26, 2026
Kawasaki G7 Wiring Diagram 9 out of 10 based on 20 ratings. 90 user reviews.

Kawasaki G7 Wiring Diagram

Nordyne G7 Furnace Wiring Diagram 33 Wiring Diagram

G7l Power Relay

Cimr

Lincoln Weldanpower 225 G7 Manual

Heet - Porsche 944 Electrics

Dell Inspiron N5040 Motherboard Diagram

Lg Manuals

Terex Fuchs Mhl360d Wiring Diagram

Hp Laptop Diagram

Terex Fuchs Mhl360d Wiring Diagram

Western Electric Products - Telephones

G7l Power Relay

Xaudia Microphone Blog G7 Microphone

Tdc Marker Unit

Rheem Rhllhm3617ja Wiring Diagram

Need Help Wiring Up A Transformer

Sgdh

1976 Ford Bronco Tech Diagrams Picture

G7l Power Relay

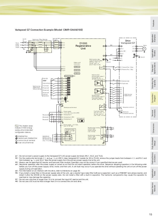
Varispeed G7 Instruc Manual

U0418 U043d U0441 U0442 U0440 U0443 U043a U0446 U0438 U044f U041a U041f U044b U043b U0435 U0441 U043e U0441 U0443 Kirby Ultimate G Diamon

Varispeed G7 Instruc Manual

Case Study Iis 8 Scaling On An Hp Proliant Dl980 G7 8

I Have A Lincoln Welder Weldanpower 225 G7 Code 9444

Kv100

Dual Ptt Selber Bauen

Hp Proliant Dl380 Back

F7 P7 And G7 Troubleshooting For The Machine Operator

E90 Amplifier

920915 Nordyne Control Board G7 Single Stage U2013 Hvacpartstore

Powerdynamo For Kawasaki G7 And Kh 125

G7 Fuel Pump Kit

Lincoln Weldanpower 225 G7 Manual

Fuel Pump Price List

Lincoln Weldanpower 225 G7

920915 Nordyne Control Board G7 Single Stage U2013 Hvacpartstore

Lincoln Weldanpower 225 G7 Manual

Hp Pavilion Dv6 Dv7 Schematic Up67 Discrete U2013 Laptop

Lincoln Weldanpower 225 G7

230 Volt 3 Phase Motor Wiring

1976 Ford Bronco Tech Diagrams Picture

Viewer Q U0026a

Kirby 110 Volt Power Switch Fits G3 G4 G5 G6 G7 G10

Damon Motorhome Wiring Diagrams Damon Ultrasport Wiring

Dv5 Webcam Pinout - Hp Support Community

Hp Proliant Dl380 Back

S900 Futaba T14sg Phantom 5 8ghz And Lightbridge

Ford Sierra Ponent Location

Starter Generator Fits Yamah Golf Gart G2 G3 G4 G5 G6 G7

Hp Pavilion Ze4900 Laptop Schematic Diagram U2013 Laptop Schematic

Yaskawa Wiring Diagram

Varispeed G7 Instruc Manual

My New Old Nardini Ms350 Is Here

Best Review Msi Gx720

2006 Mitsubishi Lancer Evolution Repair Manual

West Auctions

Rear Pc Control Board

Bi U1ebfn T U1ea7n Yaskawa D1000

920916 Nordyne Control Board G7 Dual Stage U2013 Hvacpartstore

Altistart 48 User Manual

Diagram Kawasaki G7 Wiring Diagram

  • Download Kawasaki G7 Wiring Diagram

    draw.io is free online diagram software for making flowcharts, process diagrams, org charts, UML, ER and network diagrams

    Open and edit diagrams online with Draw.io, a free diagram software supporting various formats and diagram types.

    Create a new diagram, or open an existing diagram in your new tab. To create a new diagram, enter a Diagram Name and click the location where you want to save the file.

    Create flowcharts and diagrams online with this easy to use software.

    Easily import diagrams from Lucidchart to diagrams.net or draw.io with this simple tool.

    Create and edit diagrams with draw.io, a free diagramming tool that integrates seamlessly with Office 365.

    Access and integrate Google Drive files with Draw.io using the Google Picker tool for seamless diagram creation.

    Clearing Cached version 29.3.4... OK Update Start App

    7.2 The Software will initiate transfers of data forming part of the Diagrams (“Diagram Data”) to services supplied by third parties when you expressly request conversion of Diagrams: a. to another supported file format; and b. to PDF format.

    "short_name": "draw.io", "description": "draw.io is a free diagram editor", "icons": [ { "src": ".. favicon.ico", "type": "image x icon", "sizes": "16x16 32x32" }, { "src": "icon 192.png", "type": "image png", "sizes": "192x192" }, { "src": "icon 512.png", "type": "image png", "sizes": "512x512" },

    3 way switch,3 way switch wiring,3 way switch wiring diagram pdf,3 way wiring diagram,3way switch wiring diagram,4 prong dryer outlet wiring diagram,4 prong trailer wiring diagram,6 way trailer wiring diagram,7 pin trailer wiring diagram with brakes,7 pin wiring diagram,alternator wiring diagram,amp wiring diagram,automotive lighting,cable harness,chevrolet,diagram,dodge,doorbell wiring diagram,ecobee wiring diagram,electric motor,electrical connector,electrical wiring,electrical wiring diagram,ford,fuse,honeywell thermostat wiring diagram,ignition system,kenwood car stereo wiring diagram,light switch wiring diagram,lighting,motor wiring diagram,nest doorbell wiring diagram,nest hello wiring diagram,nest labs,nest thermostat,nest thermostat wiring diagram,phone connector,pin,pioneer wiring diagram,plug wiring diagram,pump,radio,radio wiring diagram,relay,relay wiring diagram,resistor,rj45 wiring diagram,schematic,semi-trailer truck,sensor,seven pin trailer wiring diagram,speaker wiring diagram,starter wiring diagram,stereo wiring diagram,stereophonic sound,strat wiring diagram,switch,switch wiring diagram,telecaster wiring diagram,thermostat wiring,thermostat wiring diagram,trailer brake controller,trailer plug wiring diagram,trailer wiring diagram,user guide,wire,wire diagram,wiring diagram,wiring diagram 3 way switch,wiring harness

    close